簡約設計中,並非一味的“斷舍離”或隻留下白色在空間裏。而是最大程度釋放空間體量,將空間利用最大化,融入功能,簡而不減。
設計案例

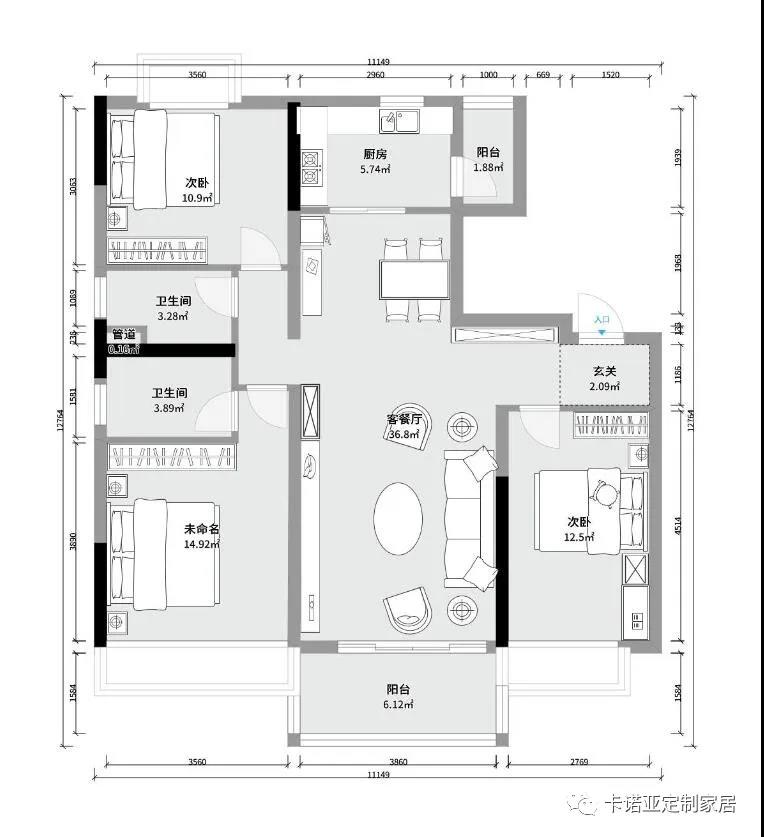
戶型名稱:碧桂園
戶型地址:海南臨高縣西線高速金牌出口龍波灣
套內麵積:98.09㎡
設計理念:空間減少不必要的裝飾和色澤,隻留下必要陳設和亮色點綴,將現代主義的簡潔與細致充分表達,打造令人眼前一亮的家居空間。
01門 廳

美滋滋的生活
從踏入玄關的那一刻便開始
加入“俄羅斯方塊”造型的入戶櫃將設計巧思隱於線麵的細節裏美觀方便的同時還具備超強收納功能懸空的設計,開放式收納格
無論是換鞋還是隨手放置常用物品
抑或擺放裝飾品都相當愜意
02餐 廳
為簡約家居增添姿彩
藍綠色是春天的氣息
設計師將它們點綴其間
營造豐富的色彩層次美

簡約的餐廳空間和香蕉视频污版APP下载保持一致
玻璃移門的使用
保證了視線和自然光穿透無阻
還能增加家人間的互動
定製的餐邊櫃,也獲得了強大的儲物空間
櫃體部分開放設計
“八分藏,兩分露”的設計法則
讓香蕉视频污版APP下载櫃子避免密不透風,具備呼吸感
滿足了香蕉视频污版APP下载最重要的功能需求
香蕉视频污版APP下载空間點綴藍與白
巧妙地點亮空間的活力 
柔和的灰色沙發搭配圓形的茶幾
弱化線條過於硬朗的香蕉视频污版APP下载
讓空間溫潤、舒適
04廚 房
如何讓香蕉网站免费观看污高級、迷人
高級灰風之穀+簡雅印象白混搭
讓原本樸素的空間生動起來
讓人間煙火香蕉网站免费观看污洋溢藝術氣息
白色自帶放大小空間的功能
玻璃移門讓香蕉网站免费观看污更明亮通透
香蕉网站免费观看污內外一動一靜一清二楚
潔白的麵板易清潔
L型廚櫃動線流暢
清洗區和烹飪區分別位於轉角兩側
動線合理


灰白相間
大麵積留白是主臥的主視覺
溫潤的床品,簡單的吊燈
營造出寧靜淡雅的睡眠環境
飄窗飄逸婉約
閑暇時光坐在柔軟的坐墊上
就著一杯咖啡品味窗外美景
難得的片刻寧靜
06客 臥
業主對客臥的大衣櫃非常滿意
緩解主臥衣櫃的收納壓力
再多衣服都裝得下
灰白主色調基礎上
點綴橘黃色床品、窗簾及掛畫
讓臥房寧靜中有活力 