整體空間通過極簡的家居氛圍營造
時尚端莊的質感搭配
帶來的是一種華麗優雅的高端視覺感
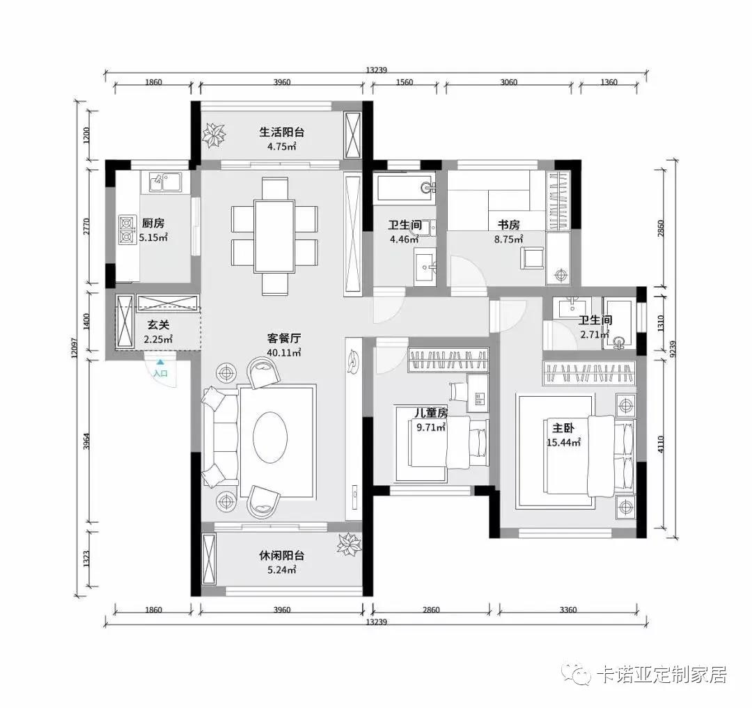
設計案例

戶型名稱:雲山雅築
戶型地址:廣東省廣州市白雲區均禾大道
套內麵積:99.03㎡
設計理念:紛繁複雜的世界,迫切需要一方寂靜的空間,讓91香蕉污视频能靜心聆聽自我內心的心聲。本案業主是一位時尚女白領,心中懷有浪漫的幻想,卻不隨波逐流,喜歡與世界溫柔對話,宅在家裏是她最享受的狀態。設計師冷靜地審視著生活,為她打造這個詩意簡美之家。空間基調以淺色為主,綴飾一些鮮豔的顏色,用視覺簡感拉近與居者的距離感,力求小空間功能性最大化,定製具有收納功能的整麵櫃體,各種雜物都擁有了最佳的容身之地。住進新家後,業主非常享受極簡設計帶來的純淨與雅致,回歸屬於家的溫度,自由舒適,並觸動心靈深處。
01玄關
玄關櫃頂天立地
契合大氣簡約的格局
並巧妙地設置靠牆三段式L型組合櫃體
充分利用轉角空間
增加了空間的利用率
推開門,入眼即為一室整潔
生活充滿秩序之美
02餐廳空間
餐廳與生活陽台、香蕉视频污版APP下载相連
視覺無阻隔,開闊敞亮
黑白雙色對比鮮明的餐邊櫃
挺括的線條構造出空間簡潔的肌理感
大理石花紋的地磚明淨統一中富有變化
餐邊櫃與酒櫃合二為一
設計師巧妙地利用“虛實結合”的設計原則
開放格與封閉櫃有序分布
通透玻璃與板材門板交替
不規則鏤空增加了些許意趣03香蕉视频污版APP下载空間
香蕉视频污版APP下载與休閑陽台相連
多人布藝沙發與單人沙發的呼應
背靠舒適愜意的背景護牆板
陽光透過推拉玻璃門傾瀉而入
營造了悠閑懶散的氛圍
灰色的棉麻布藝沙發增加了休閑感
添加色彩飽和度低的各類抱枕
讓空間充滿了色彩的層次感
色彩出眾,百看不厭
誰說香蕉网站免费观看污就不能是詩與遠方的藝術空間
通過設計師的巧思設計
讓香蕉网站免费观看污烹出新煮意
L型廚櫃充分利用轉角戶型
定製一整排的地櫃和吊櫃
讓收納滿分,保持台麵整潔
洗、切、炒、盛動線合理
一氣嗬成無需來回跑
玻璃推拉門的巧妙引入,加上簡約白的應用
讓小香蕉网站免费观看污通透明亮之外
更加強了香蕉网站免费观看污內外家人的即時交流

05陽台空間
雙陽台功能強大
休閑陽台定製了一個陽台櫃
放置各類日常生活用品
減輕室內收納的壓力
中間鏤空擺放綠植、飾品
閑暇時光坐在藤椅上可賞日月更替四季輪回
生活陽台同樣定製了一個陽台櫃
因定位功能不同
設計上更注重與洗衣、晾衣結合
三段式結構
吊櫃放置各類洗滌用品
中間放台盆
地櫃嵌入洗衣櫃不唐突
保證了整體的統一風格和整潔的陽台
臥室風格素雅簡潔
組合式衣櫃讓業主大膽買買買
一體化的櫃體顏色流暢自然
加入黑色線條讓空間統一中有變化

靠窗增設了梳妝台
滿足了愛美業主的梳妝打扮
靠牆設立了一個小書櫃
亦可作為一個閱讀區使用
07兒童房
滿足孩子個性的需求
空間作了跳色處理
同時兼顧實用性
製作了組合式櫃子
滿足儲物與學習的功能
衣櫃延伸出來的書櫃、書桌
讓空間不缺失功能性
滿足兒童學習之需
活力橙與簡約白的撞色設計
充滿裝飾的趣味性

08香蕉视频黄色版
香蕉视频黄色版是學習、思考之地
讓心靈回歸寧靜
故設計師將香蕉视频黄色版應用了
“輕與重”的設計手法
深色係的銀絲木貼皮、黑澤明
結合淺色係的珍珠白配色
穩重不失輕盈之美
讓學習與工作可以靜下心來
靠窗設置的榻榻米床
讓香蕉视频黄色版兼具臥房的功能
可作為客人留宿的臨時之用