簡單,是終極的複雜。
Simplicity is the ultimate sophistication.
——達芬奇

繼空巢青年、佛係、隱性貧困人口……
這些標簽之後,新青年當中刮起新潮流:
極簡主義青年= =
在他們眼裏,
穿衣隻選剪裁得體有質感的衣服,
吃飯時全部心思全用在菜品的味道上,
理發無需托尼老師花式點評,
隻選活好話少的。
麵對日益高漲的房租房價,
極簡主義青年在家居空間中,
更是本著一切從簡,崇尚自由的思想,
旋即91香蕉污视频極簡生活係列也被眾人擁躉~
今天小卡分享一套極簡風家居裝修案例,
給空間做減法,讓家居承載豐滿的“空”
營造輕盈的生活,呼吸自由的空氣~
Come on,一起做一枚極簡青年
☟☟☟
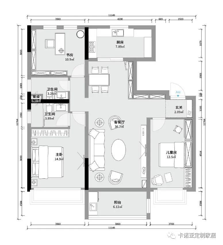
{戶型圖}
01門廳
銀絲木貼皮搭配LCT高亮光門板
顯示出別樣的尊奢
獨特的線條工藝增加了挺括的肌理感
使得空間具有超凡的氣質
設置一個到頂的玄關櫃
中部放置一麵鏡子,出入整理著裝儀容便捷
左邊封閉式收納櫃與右邊開放格相結合
一藏一展,動靜皆宜
02餐廳
餐廳是質感的純白,符合極簡的設計理念
為喧囂的都市減壓,心情也變得輕舞飛揚 
餐邊櫃與酒櫃二合一,收納功能強大
嵌入式冰箱,更省空間、整體更統一
餐廳介於門廳、香蕉网站免费观看污之間
與香蕉网站免费观看污采用玻璃推拉門相隔
可隨時與下廚的人互動
香蕉视频污版APP下载的主體基調為銀絲貼木
低調中暗藏光華
不經意間流露出主人的優雅品味 

靈動造型的藝術吊燈
打破簡約線條的單一感
呈現個性的美感
光影流動彰顯空間層次感
柔和溫暖的布藝沙發融化簡約的硬朗
高冷香蕉网站免费观看污彰顯高逼格氣場
銀絲木搭配高亮光LCT珍珠白門板,
讓香蕉网站免费观看污變成一個潔白的藝術空間
生活的高光點亮香蕉网站免费观看污的色香味 
05主臥
主臥以白色為主色調,深色為輔助色
加入灰色係的銀絲木
打造出品質高雅的極簡風格
到頂衣櫃設置了玻璃櫃門
空間通透更顯大 

寢具為純潔的白色,深色邊框修飾
看起來幹淨舒適又耐品
奔波了一天的疲憊身軀
可以在這裏得到溫柔的治愈 
06兒童房
兒童房有別於主臥的沉穩與冷靜
設計師有意用跳躍的橘黃色提升空間的活力
在與灰白的碰撞中綻放空間的創意
釋放孩子無窮的想象力
衣櫃、書櫃、書桌一體化
嵌入式床頭,不浪費一寸空間
靠牆定製一整排櫃子
但並非單一的全封閉櫃子
開放與封閉兼有,視覺立體不顯壓抑
讓空間即不缺失功能性
又充滿裝飾的趣味
07香蕉视频黄色版
每個家都需要一個極致香蕉视频黄色版
在一個屬於自我的空間裏
閱一本喜愛的書籍,品一杯香濃的咖啡
此情此景何等愜意 
小時候快樂很簡單,長大了簡單即快樂
讓人靜心的慕尼黑及銀絲木花色
通透醒神的LCT珍珠白搭配玻璃門
簡單的色彩搭配,去繁化簡,減掉贅飾
讓你在繁複的工作之後
找到一個“減壓”的香蕉视频黄色版